Home
About Us
Our Story
Communities
Caledon Trails
Sharon Village
Stonemanor Woods
Brookside on the Rouge
Hillside Manors
Gallery
Customer Service
Contact
About This Community
Models
Features + Finishes
Site Plan
Amenities
Contact Us
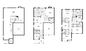
Mcintosh
- Elev. A
3145 sq. ft.